Active
16 Photos
16 Photos
16 Photos
16 Photos
Urb. Puerto Nuevo, Local en San Juan
San Juan, 8 Beds | 3 Baths $ 285,000Description
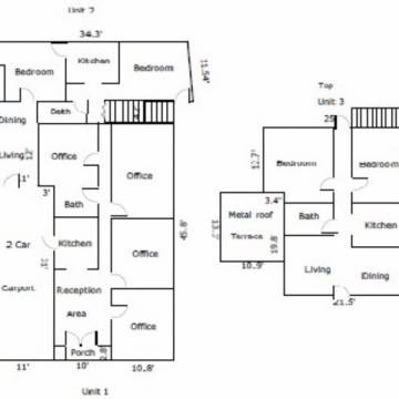
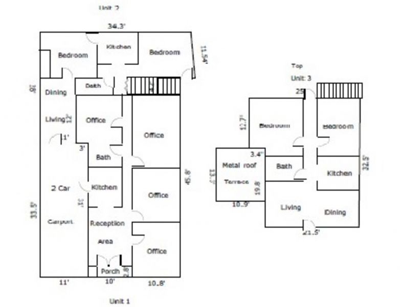
Propiedad comercial de dos niveles ubicada en Calle Cañada, en Puerto Nuevo, compuesta por tres unidades independientes, cada una con su contador de electricidad propio, con un total de 2,319 pies cuadrados de construcción. Su localización ofrece acceso conveniente a avenidas principales como Roosevelt y De Diego, así como a Plaza Las Américas, Centro Médico, el Expreso Las Américas y el Expreso De Diego, lo que la convierte en una alternativa estratégica dentro de una zona comercial consolidada.
Es ideal para inversionistas que buscan diversificar ingresos, establecer múltiples operaciones en un mismo edificio o maximizar el potencial de renta. El precio está basado en tasación comercial y la propiedad no aplica para financiamiento.
More Info on Urb. Puerto Nuevo, Local en San Juan
| Property ID: | 59512 |
| MLS Number: | 63942 |
| Status: | Active |
| Type: | Commercial |
| Price: | $ 285,000 |
| Bedrooms: | 8 |
| Bathrooms: | 3 |
| City: | San Juan |
| Community: | |
| HOA: | N/A |
| Floor Area: | 2319 |
| Year Built: | 1948 |
Listing Provided By:
Lillibert Conde Cruz
KW Grand Homes
